Erstbezug nach Modernisierung mit Aufzug
Erstbezug nach Modernisierung mit Aufzug
Friedrich-Viertel-Str. 127, 09123 Chemnitz
Wohnungsnummer: 8090/4/21
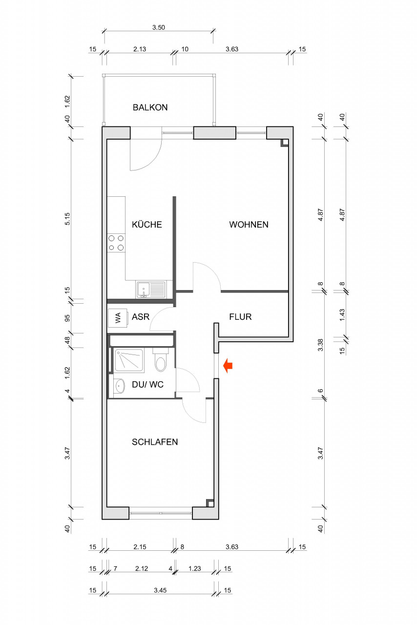
- 56.76 m²
- 2 Zimmer
- sofort
- Warmmiete: 622 EUR
Beschreibung
Am Gebäude Friedrich-Viertel-Straße 121-129 wurden bis November 2025 umfangreiche Modernisierungsmaßnahmen durchgeführt.
Derzeit frei ist eine komfortabel geschnittene 2-Raum Wohnung, die mit einem großen Wohnzimmer, einem geräumigen Flur und einem separaten Hauswirtschaftsraum (in der Wohnung) keine Wünsche offen lässt.
Ausgestattet ist die Wohnung mit modernen, hellen Böden, weißen Innentüren und einem schicken Bad.
Das Gebäude verfügt über einen Aufzug, welcher auf halber Etage hält und den Zugang zu den Wohnräumen erheblich erleichtert.
Neue, großzügige Balkone und Terrassen im Erdgeschoss erweitern das Wohnzimmer nach draußen und erlauben jederzeit einen Blick in das gepflegte grüne Umfeld.
Ausstattung & Merkmale
Aufzug, Balkon/Loggia, ebenerdiger Balkonaustritt, Küche mit Fenster, Dusche
Kosten
| Gesamtmiete | 549,00 EUR |
|---|---|
| Grundmiete | 426,00 EUR |
| Nebenkostenvorauszahlung | 123,00 EUR |
| Genossenschaftsanteile | 1.530,00 EUR |
Energieausweis
-
Energieausweistyp
Verbrauchsausweis
-
Baujahr
1985
-
Primärenergieträger
Fernwärme
-
Endenergieverbrauch
97,00 kWh/(m²-a)
-
Energieeffizienzklasse
B
Lage & Umgebung
Das Quartier Friedrich-Viertel-Straße liegt mitten im schönen Wohngebiet Hutholz, welches sich durch eine ruhige Lage, gute Anbindungen und schöne Spielplätze im Wohngebiet auszeichnet. Hier ist der Supermarkt fußläufig zu erreichen, ebenso die Bahn- und Bushaltestelle. Ebenso schnell ist man im Grünen, ohne dabei den Komfort der guten Infrastruktur missen zu müssen. Freie Parkplätze, geschlossene Parkplatzanlagen, Fahrradgaragen und Parkplätz mit E-Ladeinfrastruktur sind in unmittelbarer Nähe vorhanden.
Friedrich-Viertel-Str. 127, 09123 Chemnitz, Deutschland (auf Google Maps ansehen)
Kontakt
Team Vermietung
E-Mail: vermietung@wg-einheit.de
Telefon: 0371 52348-333
Alfred-Neubert-Straße 17
09123 Chemnitz
German
English








