Diese Wohnung ist besonders: Grundriss, Ausblick und ein toller Balkon
Diese Wohnung ist besonders: Grundriss, Ausblick und ein toller Balkon
Ludwig-Kühn-Str. 19, 09123 Chemnitz
Wohnungsnummer: 7730/1/101
- 70.16 m²
- 2 rooms
- immediately
- Warm rent: 589 EUR
Description
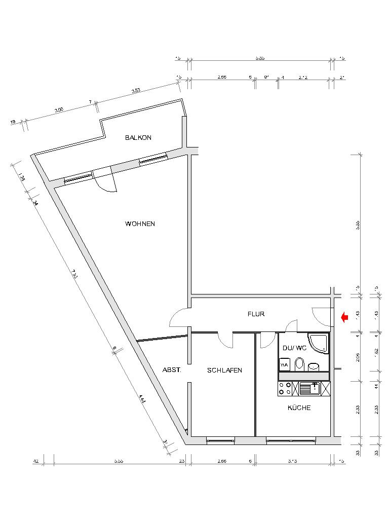
Vom Süd-/West-Balkon der 2-Zimmer-Wohnung weit oben hat man einen tollen Blick ins Erzgebirge. Die halbseitige Verglasung sichert auch an kühleren Tagen Wohlfühlen auf dem Balkon. Das großzügige Wohnzimmer hat eine besondere Form ohne rechte Winkel, ist aber trotzdem gut zu möblieren. Am Schlafzimmer gibt es einen Nebenraum, der sich als begehbarer Schrank einrichten lässt. Die Tageslichtküche bietet Platz zum Essen.
Das Bad ist mit einer Dusche ausgestattet.
open
The object is not available right now.
Ausstattung & Merkmale
Aufzug, Balkon/Loggia, Küche mit Fenster, Dusche
Kosten
| Total rent | 589,00 EUR |
|---|---|
| Basic rent | 433.00 EUR |
| Advance payment of ancillary costs | 95.00 EUR |
| Advance payment of heating costs | 61.00 EUR |
| Cooperative shares | 1,530.00 EUR |
Energy certificate
-
Energy certificate type
Consumption pass
-
Year of construction
1983
-
Primary energy source
District heating
-
Final energy consumption
51.00kWh/(m²·a)
-
Energy efficiency class
B
Lage & Umgebung
The Markersdorf-Süd residential area in the south of Chemnitz offers many opportunities to enjoy nature. In addition to playgrounds for the little ones, you can enjoy the peace and quiet while walking in the Harthwald forest.
The residential area can be reached quickly via Stollberger Straße or Südring/Wolgograder Allee. The Chemnitz-Süd junction provides a good connection to the A 72 motorway, while the nearby bus routes will take you to the city center in around 25 minutes. There are kindergartens and schools for your children, such as the Charles Darwin elementary school, in the immediate vicinity.
The nearby supermarkets, Kaufland-Center and other stores offer excellent shopping opportunities.
Health is taken care of by a medical center. There are also other specialists and a pharmacy in the residential area.
Ludwig-Kühn-Str. 19, 09123 Chemnitz, Deutschland (view on Google Maps)
Kontakt
Rental team
E-Mail: vermietung@wg-einheit.de
Phone: 0371 52348-333
Alfred-Neubert-Strasse 17
09123 Chemnitz
German
English








