!!NEU!! Schöne 3-Raum-Wohnung im Chemnitzer Süden
!!NEU!! Schöne 3-Raum-Wohnung im Chemnitzer Süden
Kurt-Schneider-Str. 12, 09122 Chemnitz
Wohnungsnummer: 3540/4/41
- 57.33 m²
- 3 Zimmer
- sofort
- Kaufpreis: 53000 EUR
Beschreibung
Das Mehrfamiliengebäude mit sechs Wohngeschossen und insgesamt 48 Wohnungen, ist in vier Hauseingängen unterteilt. Es wurde 1978 erbaut und im Jahr 1995 komplett modernisiert. Dabei wurden die Dacheindeckung, die Fenster, die Be- und Entlüftung, die Elektrik, die Wohnungseingangstüren sowie die Kaltwasserleitungen erneuert. Außerdem erhielt das Gebäude eine Wärmedämmung, sowie eine zusätzliche Dämmung der Erdgeschosswohnungen zum Kellergeschoss und der letzten Etagen zum Dach (Trempel). Auch die Heizungsanlage wurde komplett modernisiert und durch das 2-Rohrsystem ersetzt. Die Loggien bzw. Balkone wurden vergrößert und die Erdgeschosswohnungen erhielten Terrassen mit kleinen Gärten.
Die Wohneigentumsanlage wird durch einen günstigen Fernwärmeanschluss versorgt die Kosten für Heizung und Wasser werden über die Betriebskosten bzw. Hausgeld abgerechnet.
Das Gebäude besitzt keinen Aufzug.
Ausstattung & Merkmale
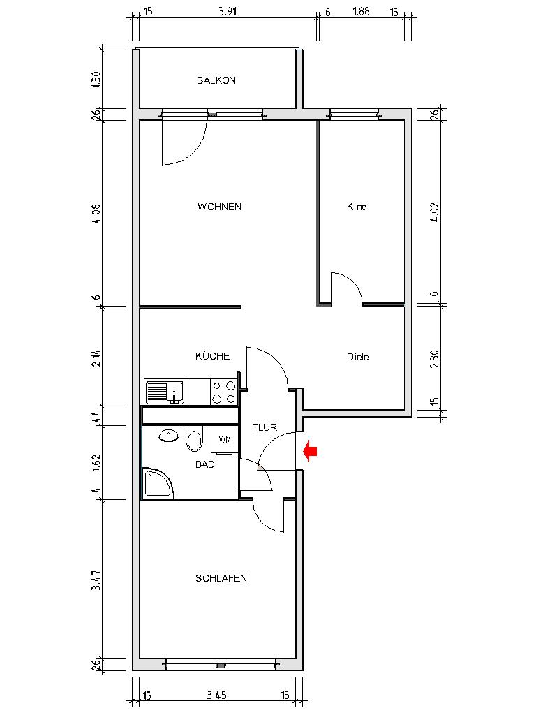
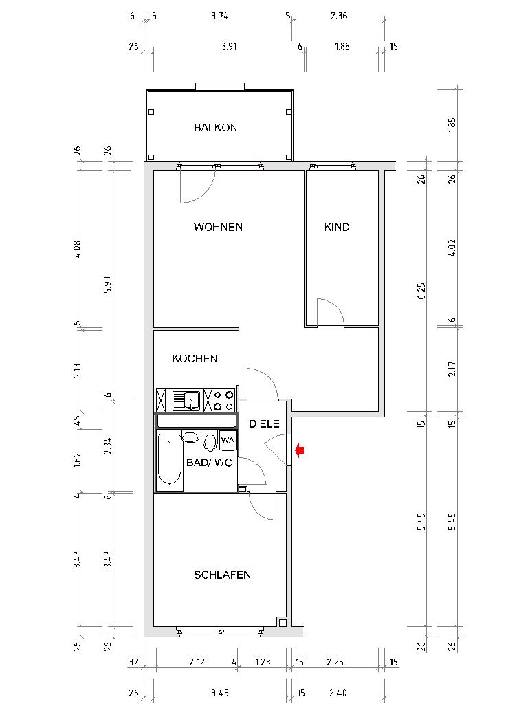
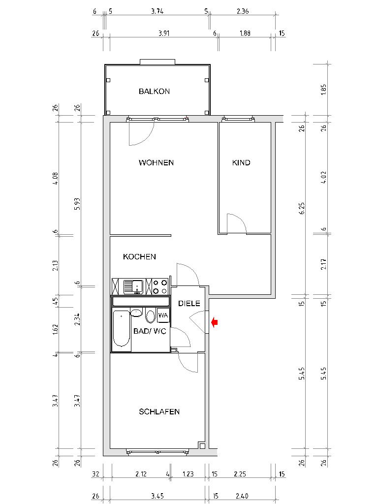
Balkon/Loggia, Wanne Die angebotene Eigentumswohnung hat einen sehr schönen Grundriss. Vom Flur betreten Sie das Schlafzimmer, das Bad und das Wohnzimmer. Das Schlafzimmer bietet auf ca. 12 m² Platz für Kleiderschrank und ein Doppelbett. Das Badezimmer ist mit einer Badewanne, einem Waschplatz und WC ausgestattet. Der Waschmaschinenanschluss befindet sich im Bad. Das Wohnzimmer bietet einen hervorragenden Ausblick auf das Vorerzgebirge. Es ist unterteilt in einen Wohn-, Koch- und Essbereich und hat insgesamt eine Wohnfläche von ca. 28 m². Die Küche ist abgetrennt. Das Kinderzimmer grenzt direkt an den Wohn- bzw. Essbereich an, so dass der Nachwuchs unmittelbar im Geschehen sein kann. Natürlich können Sie das Kinderzimmer auch als Arbeits-, Gästezimmer, Hobbyraum oder ähnliches nutzen. Egal wie Sie diesen Raum nutzen möchten, er bietet Ihnen ca. 7,5 m² Wohnfläche. Der großzügige süd-ost Balkon ist vom Wohnzimmer aus zu begehen und lädt immer wieder aufs Neue zum Entspannen ein. Vielleicht haben Sie einen grünen und können schon bald hier in Ihrer eigenen Oase relaxen. Als Wohnungseigentümer können Sie sich innerhalb Ihres Sondereigentums frei entfalten! D.h., sollten Sie eine offene Wohnform bevorzugen, können Sie natürlich auch die Küchenwand oder das Kinderzimmer entfernen (lassen) und den noch größeren Wohn- und Kochbereich genießen.
Energieausweis
-
Energieausweistyp
Verbrauchsausweis
-
Baujahr
1978
-
Primärenergieträger
Fernwärme
-
Endenergieverbrauch
52,80 kWh/(m²-a)
-
Energieeffizienzklasse
B
Lage & Umgebung
Markersdorf-Nord liegt im Süden von Chemnitz. Mit der Straßenbahnlinie 5, den Buslinien 52, 53 (N15 Nachtverkehr) sind Sie zügig im Stadtzentrum. Die Buslinie 53 bringt Sie zum TU-Campus. Das Wohngebiet ist schnell über den Südring zu erreichen. Durch die Anschlussstelle Chemnitz-Süd besteht eine gute Anbindung an die A 72.
Mit dem Stadtpark liegt ein wundervolles Naherholungsgebiet direkt fußläufig erreichbar vor Ihrer Tür. Das VITA-CENTER und andere verschiedene Einkaufsmöglichkeiten sowie zahlreiche Freizeit- und Erholungsmöglichkeiten (Schwimmhalle „Am Südring“) befinden sich nur wenige Gehminuten entfernt. , Ärzte im Wohngebiet, Buslinie 52, 53 und N15, excellente Verkehrsanbindung, fußläufig Einzelhandelsgeschäfte, Gesundheitszentrum, gute Verkehrsanbindung, Highspeed-Internet verfügbar, Kindergarten und Grundschule, Naherholungsgebiete in der Nähe, ÖPNV-Anbindung vorhanden, ruhige Lage mit viel Grün, Straßenbahnlinien 4 und 5, Zahnarzt und Physiotherapie
Kurt-Schneider-Str. 12, 09122 Chemnitz, Deutschland (auf Google Maps ansehen)
Kontakt
Team Vermietung
E-Mail: vermietung@wg-einheit.de
Telefon: 0371 52348-333
Alfred-Neubert-Straße 17
09123 Chemnitz
German
English

















