+!+ LICHTDURCHFLUTETE 2-Raum-Whg. in Hutholz mit Blick ins Grüne +!+
+!+ LICHTDURCHFLUTETE 2-Raum-Whg. in Hutholz mit Blick ins Grüne +!+
Walter-Ranft-Str. 56, 09123 Chemnitz
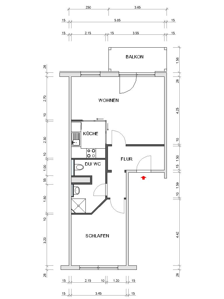
Wohnungsnummer: 9000/6/11
- 55.5 m²
- 2 Zimmer
- sofort
- Warmmiete: 493 EUR
Ausstattung & Merkmale
Balkon/Loggia, Balkonverglasung, Dusche, ebenerdige Dusche - moderner Grundriss mit großen Glasfronten als Teilung des Koch-und Wohnbereiches - PVC Belag in Laminatoptik - unverbauter Blick ins Grüne - geräumiges Bad mit ebenerdige Dusche - Waschmaschinenanschluss im separaten Wasch- und Trockenraum - geräumiger Flur
Kosten
| Gesamtmiete | 493,00 EUR |
|---|---|
| Grundmiete | 362,00 EUR |
| Nebenkostenvorauszahlung | 94,00 EUR |
| Heizkostenvorauszahlung | 37,00 EUR |
| Genossenschaftsanteile | 1.530,00 EUR |
Energieausweis
-
Energieausweistyp
Verbrauchsausweis
-
Baujahr
2008
-
Primärenergieträger
Nah-/Fernwärme
-
Endenergieverbrauch
52,00 kWh/(m²-a)
-
Energieeffizienzklasse
B
Lage & Umgebung
Das Quartier Friedrich-Viertel-Straße liegt mitten im schönen Wohngebiet Hutholz, welches sich durch eine ruhige Lage, gute Anbindungen und schöne Spielplätze im Wohngebiet auszeichnet. Hier ist der Supermarkt fußläufig zu erreichen, ebenso die Bahn- und Bushaltestelle. Ebenso schnell ist man im Grünen, ohne dabei den Komfort der guten Infrastruktur missen zu müssen. Freie Parkplätze, geschlossene Parkplatzanlagen, Fahrradgaragen und Parkplätz mit E-Ladeinfrastruktur sind in unmittelbarer Nähe vorhanden.
Walter-Ranft-Str. 56, 09123 Chemnitz, Deutschland (auf Google Maps ansehen)
Kontakt
Team Vermietung
E-Mail: vermietung@wg-einheit.de
Telefon: 0371 52348-333
Alfred-Neubert-Straße 17
09123 Chemnitz
German
English








